ANA SAYFA PROJELER İLETİŞİM HAKKIMIZDA
GÜVENAL APARTMANI
SUADİYE - 2015

Kapalı garaj

Bütün odalara tavan menfezli Daikin Klima

Elektrikli motorlu panjurlar

Her odada telefon ve tv tesisatı

Fiber internet altyapısı

Data ve telefon ile internete hızlı erişim

Rehau çift açılımlı doğramalar kontor camlı

Kale çelik kapı

Salon ve odalarda masif ve lamine parke

Mutfak dolapları Tekdekor beyaz lake

Banyo dolapları Tekdekor beyaz lake

Portmanto Tekdekor beyaz lake veya ahşap

Islak hacimler Serenit Seramik

Bataryalar Artema

Vitrifiyeler Vitra

Ankastre Siemens (ocak, fırın, m. dalga, buzdolabı)

Davlumbaz ve evye Franke

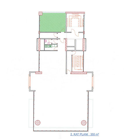
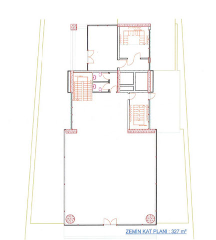
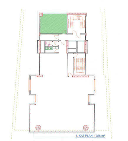
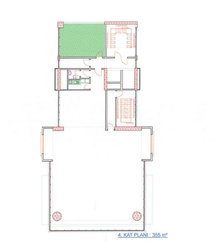
KAT PLANI

Salon

Mutfak

E. Yatak Odası

Oda

Oda

Banyo

E. Banyo

Antre

Hol

Mutfak Balkon

Y.G.H.

 

Daire Yaşam Alanı

Net Daire Alanı

Brüt Daire Alanı

33.61 m2

12.42 m2

18.62 m2

12.18 m2

9.68 m2

4.82 m2

3.10 m2

7.15 m2

1.61 m2

5.52 m2

3.00 m2

 

111.76 m2

125 m2

155 m2

Ersan Asansör • Kombi Sistemi • PVC Membram izolasyon (temel çatı) PP300 ondiline • Bütün perdeler Weber Sürme izolasyon • C35 Beton

Radye Temel • Temel Drenaj • ST III A sınıfı inşaat demiri • Ytong Duvarlar • Jeneratör (bütün binaya daire içi ve dışı) • Dış cephe mantolama

MALTEPE E-5 PROJESİ
MALTEPE - 2016
ANA SAYFA PROJELER İLETİŞİM HAKKIMIZDA

0216 361 59 19

Şemsettin Günaltay Cad. Güvenal Apt. No:75/4

Suadiye Kadıköy/İSTANBUL

© Copyright 2015 by Karaca Yapı